PLANS

Explore our selection of house plans, ranging from architectural designs to classic plans, the team at Turbine Residential work with you to make your dream home a reality.

Our range of plans offer a wide array of styles and sizes, ensuring there's something to suit every taste.

What sets us apart is our commitment to quality workmanship and our ability to customise any design and deliver a build you can be proud to call home.

We understand your home should reflect your unique lifestyle and preferences, which is why all of our plans are fully customisable.

You have the freedom to tailor the design to your exact specifications, ensuring it's a perfect fit for you and your family.

We offer exceptional budget flexibility, making it easier for you to achieve the home you've always envisioned.

We offer a Registered Master Builder Fixed Price Contract and a 10 year Master Build Guarantee on all of our builds.

This means you can plan your dream home with confidence knowing the costs are locked in, providing peace of mind throughout the building process.

Choose from our range of plan designs and let us help you create the perfect home for your future. Get in touch with us today!

TAHI

ARCHITECTURAL RANGE

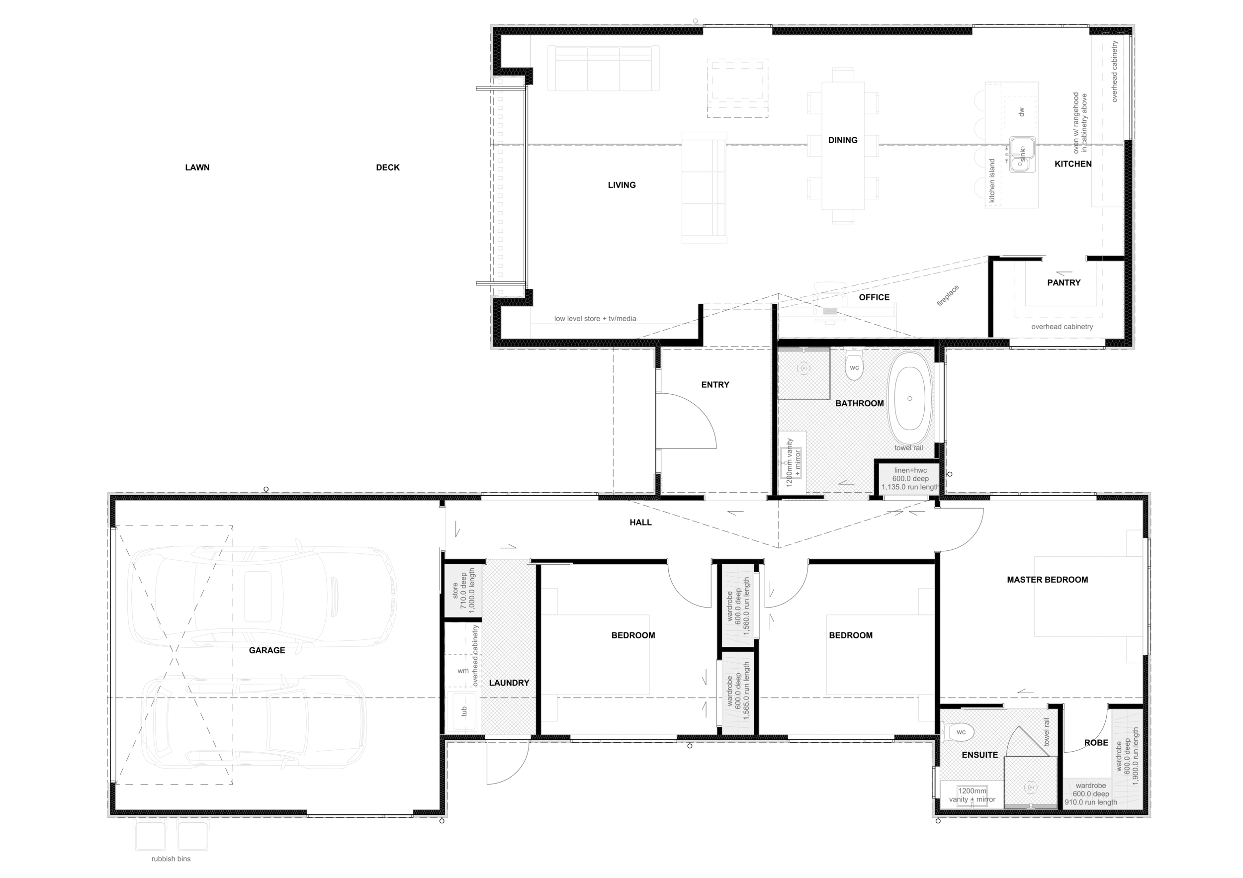
bedroom

3

bathroom

2

Car garaging

2

RUA

ARCHITECTURAL RANGE

bedroom

4

bathroom

2

car garaging

2

TORU

ARCHITECTURAL RANGE

bedroom

4

bathroom

2

Car garaging

3

WHĀ

CLASSIC RANGE

bedroom

4

Bathroom

2

Car garaging

2

RIMA

CLASSIC RANGE

bedroom

3

Bathroom

2

Car garaging

2

ONO

CLASSIC RANGE

bedroom

3

2

car garaging

2

Car garaging

WHITU

ARCHITECTURAL RANGE

bedroom

5

Bathroom

2

car garaging

2

WARU

CLASSIC RANGE

bedroom

3

Bathroom

2

Bedrooms

2